VINHOMES GREEN CITY
Dự án Vinhomes Green City Hậu Nghĩa Đức Hòa nằm ngay tại thị trấn Hậu Nghĩa, thuộc xã Đức Lập Thượng và xã Tân Mỹ, huyện Đức Hòa, tỉnh Long An, gần kề trung tâm hành chính huyện. Vị trí dự án vô cùng thuận lợi khi tiếp giáp với trường THPT Hậu Nghĩa và bệnh viện Đa khoa Xuyên Á đang trong giai đoạn xây dựng.
Đồng thời, khu đô thị này có liên kết giao thông xuất sắc với các tuyến đường trọng điểm như Quốc lộ N2, đường Hồ Chí Minh nối cao tốc phía Tây cùng với vành đai 4 của TP. Hồ Chí Minh, tạo điều kiện di chuyển linh hoạt đến trung tâm thành phố và các vùng phụ cận.

TỔNG QUAN VINHOMES GREEN CITY
| Tên: |
Vinhomes Green City |
| Chủ đầu tư: |
CTCP Phát triển TP Xanh (thành viên của Vinhomes) |
| Đvị tư vấn: |
Viện quy hoạch & KTĐT (UAI) |
| Vị trí: |
Quốc Lộ N2 chạy qua khu vực TT. Hậu Nghĩa. Dự án trải dài bao gồm một phần tại thị trấn Hậu Nghĩa, một phần thuộc xã Đức Lập Thượng và một phần nằm trong xã Tân Mỹ, thuộc H. Đức Hòa, Tây Ninh (Long An cũ) |
| Loại hình sản phẩm: |
Biệt thự, chung cư, khu nhà ở liền kề |
| Quy mô dự án: |
~197,22 ha. |
| Tổng vốn đầu tư: |
28.257,8 tỷ đồng |
| Năm khởi công: |
2024 |
| Thời gian vận hành: |
2028 |
| Tiện ích nội khu: |
Khu vực có công viên, hệ thống trường học Vinschool, bệnh viện Vinmec và dịch vụ xe buýt Vinbus… |
Danh mục sản phẩm dự kiến gồm:
– Biệt thự với tổng số 517 căn, bao gồm cả biệt thự đơn lập và song lập. Các mẫu thiết kế theo phong cách Tân Cổ Điển, có chiều cao tối đa lên đến 5 tầng.
– Nhà phố với 4.510 căn, bao gồm nhà phố thương mại (shophouse) và nhà phố liền kề, đều được xây dựng với chiều cao tối đa 5 tầng.
– Khu vực tái định cư với 491 lô đất được quy hoạch.
– Các tòa chung cư cao tầng gồm 5 ô quy hoạch, mỗi tòa cao 25 tầng, tổng diện tích dự kiến là 110.212 m².
– Nhà ở xã hội được phát triển trên diện tích 159.898 m², quy hoạch thành 5 ô dự án với chiều cao xây dựng không vượt quá 5 tầng.
Toàn bộ các hạng mục này được thiết kế nhằm đáp ứng đa dạng nhu cầu về nhà ở, đồng thời chú trọng về mặt kiến trúc và quy hoạch bền vững.

Khu dân cư nhà thấp tầng
Bao gồm biệt thự và liền kề được phân chia thành từng nhóm riêng biệt.
Cụ thể, các dãy nhà liền kề tại Vinhomes Green City Hậu Nghĩa được quy hoạch thành các khối nhà cao 5 tầng, với diện tích trung bình từ 60 đến 90 m² mỗi căn, mang phong cách kiến trúc hiện đại, trẻ trung.
Các căn nhà liền kề nằm sát tuyến đường chính được thiết kế rộng rãi hơn, dao động từ 75 đến 100 m², trong đó tầng trệt được bố trí nhằm phục vụ mục đích kinh doanh các mặt hàng và dịch vụ thương mại nhỏ.

- Khu biệt thự ven sông tại Vinhomes Green City Hậu Nghĩa nằm ở phía Đông Bắc của toàn bộ khu đô thị. Khu vực này bao gồm các căn biệt thự đơn lập cao 4 tầng, mỗi căn có diện tích dao động từ 200 đến 250 m².

- Nhóm biệt thự song lập tại Vinhomes Green City Hậu Nghĩa được thiết kế nằm sát khu lõi xanh trung tâm, góp phần phong phú thêm các loại hình nhà ở biệt thự trong khu vực. Mỗi căn biệt thự song lập sở hữu diện tích dao động từ 120 đến 150 m² và xây dựng cao 5 tầng.

Khu căn hộ chung cư cao tầng
Vinhomes Green City Hậu Nghĩa nổi bật với tòa nhà cao 25 tầng, nằm tập trung ở phía Tây của khu đô thị, tiếp giáp với tuyến đường A9 rộng 17 mét. Các dự án nhà ở chung cư tại đây được quy hoạch bao quanh công viên cây xanh đô thị phía Tây Bắc, đảm bảo không gian sống xanh mát, kết hợp hài hòa giữa kiến trúc hiện đại và yếu tố sinh thái.

Dưới các tòa nhà cao tầng được thiết kế tối đa 2 tầng hầm dùng làm bãi đậu xe, đáp ứng đầy đủ nhu cầu gửi xe của cư dân trong khu vực. Các công trình chính đều có mặt tiền hướng về phía Tây Bắc và Đông Nam, nhằm hạn chế ánh nắng trực tiếp đồng thời tận dụng luồng gió tự nhiên thổi từ phía Đông Nam vào các khu vực sinh hoạt.
Khu nhà ở xã hội
Được thiết kế thành một cụm nằm tại cửa ngõ phía Nam của dự án, tiếp giáp với trục giao thông phân khu (đường A12) rộng 20m và con đường chính trong khu vực (đường Nguyễn Thị Hạnh) cũng với mặt cắt ngang 20m. Vị trí này vô cùng lý tưởng để phát triển các loại nhà trung tầng đồng thời thúc đẩy hoạt động kinh doanh thương mại.
Các công trình xây dựng được sắp xếp theo dạng bán mở, bao quanh trung tâm là khoảng không gian cây xanh rộng lớn. Thiết kế này không chỉ tạo ra khu sân vườn rộng rãi, thích hợp để bố trí các tiện ích thể thao kết hợp với cây xanh, mà còn giúp nhóm nhà đảm bảo sự thông thoáng, mang lại môi trường sống dễ chịu.
TIỆN ÍCH VINHOMES GREEN CITY
TTTM Vincom Mega Mall

Tập hợp đa dạng các tiện ích đẳng cấp bao gồm: công viên xanh mát, hồ bơi rộng lớn, khu thể thao hiện đại, khu vui chơi sôi động, khu vực BBQ ngoài trời, và nhiều tiện ích hấp dẫn khác.

Vận hành thông minh
- Hệ thống camera an ninh hiện đại được trang bị trí tuệ nhân tạo (AI), cho phép phát hiện người lạ xâm nhập, nhận diện đối tượng trong danh sách đen, đồng thời phát hiện các hành vi vi phạm như trộm cắp hay xâm nhập khu vực hạn chế. Ngoài ra, hệ thống còn có khả năng ghi nhận các sự cố như cháy nổ, tai nạn giao thông và nhanh chóng gửi cảnh báo về Trung tâm điều hành để xử lý kịp thời.
- Kiểm soát thang máy theo tầng với công nghệ nhận diện khuôn mặt (Face ID) được áp dụng nhằm nâng cao mức độ bảo mật và an toàn cho cư dân tại các khu chung cư.
- Hệ thống cảnh báo cháy tích hợp thông minh gửi thông tin cảnh báo cùng hướng dẫn thoát hiểm trực tiếp đến smartphone của người dân, giúp họ nắm bắt tình hình và phản ứng nhanh chóng ngay cả khi không có mặt tại khu vực xảy ra sự cố.
- Giao thông trong Khu đô thị được điều phối thông qua hệ thống giám sát thông minh, sử dụng dữ liệu từ Google Maps hoặc các ứng dụng tương tự, cùng với camera đặt tại các nút giao thông trọng điểm, giúp cư dân dễ dàng lựa chọn lộ trình di chuyển thuận tiện và nhanh chóng.
- Hệ thống giám sát chất lượng không khí cung cấp số liệu về độ ẩm, nhiệt độ và mức độ ô nhiễm, đồng thời phát đi cảnh báo khi chất lượng không khí xuống thấp, kèm theo khuyến nghị bảo vệ sức khỏe phù hợp cho cư dân.
- Bảng hiển thị radar tốc độ xe được lắp đặt nhằm nâng cao ý thức chấp hành luật giao thông, góp phần đảm bảo an toàn cho tất cả mọi người trong khu vực.
Tổng thể, các giải pháp vận hành thông minh này không chỉ giúp tối ưu hóa an ninh, an toàn mà còn nâng cao chất lượng cuộc sống cho cư dân trong Khu đô thị.

An ninh hiện đại tại Vinhomes Green City Hậu Nghĩa
- Trung tâm điều hành vận hành 24/7: Sử dụng các công nghệ tiên tiến như AI và IoT để quản lý toàn bộ khu đô thị, giúp xử lý sự cố một cách nhanh chóng và chính xác.
- Mạng wifi trả phí rộng khắp: Hệ thống wifi phủ sóng toàn khu, đảm bảo cư dân dễ dàng truy cập và kết nối Internet mọi lúc, mọi nơi.
- Hệ thống liên lạc nội bộ thông minh: Căn hộ được trang bị Intercom kết nối trực tiếp với tiền sảnh, giúp cư dân mở cửa cho khách từ xa và liên lạc nội bộ qua smartphone tiện lợi.
- Giải pháp đỗ xe thông minh: Ứng dụng hỗ trợ tìm kiếm vị trí đỗ xe trống, tích hợp nhận diện biển số tự động cùng thanh toán không tiền mặt, tối ưu hóa trải nghiệm đỗ xe cho cư dân.
- Căn hộ thông minh với giải pháp Smart Homes: Cho phép điều khiển thiết bị từ xa qua ứng dụng trên điện thoại, nhận lệnh bằng giọng nói và cảm biến tự động. Đồng hồ thông minh tích hợp nhiều chức năng như định vị vị trí, ghi lại hành trình di chuyển, phân tích dữ liệu vận động, giấc ngủ và nhịp tim, đồng thời có nút khẩn cấp gửi cảnh báo trực tiếp đến điện thoại khi xảy ra sự cố.
- Thanh toán dễ dàng qua ứng dụng cư dân: Ứng dụng hỗ trợ cư dân thực hiện các giao dịch thanh toán và mua sắm một cách nhanh chóng, không cần tiền mặt. Đồng thời, cung cấp đầy đủ thông tin chi tiết về các dịch vụ, tiện ích trong khu đô thị và cho phép tương tác trực tiếp với Ban quản lý.
- Chương trình Smart Kid Pay dành cho cư dân nhí: Đây là giải pháp giúp trẻ em phát triển kỹ năng quản lý tài chính cá nhân và hình thành thói quen chi tiêu hợp lý từ sớm.
- Mạng lưới kết nối cộng đồng hiện đại: Tạo ra không gian trực tuyến thúc đẩy cư dân giao lưu, lan tỏa sự gắn kết và xây dựng môi trường sống thông minh, văn minh.
Với những ưu điểm nổi bật này, Vinhomes Green City Hậu Nghĩa không chỉ mang đến cuộc sống tiện nghi mà còn hướng đến phát triển cộng đồng thông minh bền vững.
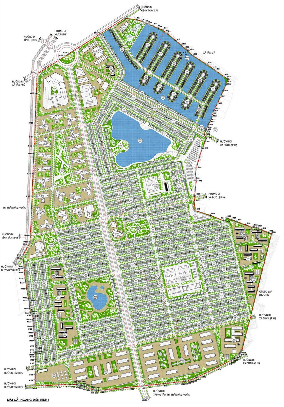
MẶT BẰNG VINHOMES GREEN CITY



TIẾN ĐỘ TRIỂN KHAI
| STT |
Hạng mục |
Thời gian |
| 1 |
Hoàn tất thủ tục pháp lý |
Đến tháng 12/2023 |
| 2 |
Bồi thường và giải phóng mặt bằng |
Đến tháng 12/2023 |
| 3 |
San lấp mặt bằng |
01/2024 – 12/2024 |
| 4 |
Triển khai xây dựng các hạng mục |
01/2025 – 01/2028 |
| 5 |
Khai thác và vận hành chính thức KĐT |
02/2028 |
Thông Tin Các Dự Án Nổi Bật Giáp Ranh Với TP. HCM
| Tên Dự Án |
Chủ Đầu Tư Dự Án |
Vị Trí Căn Hộ |
Giá Bán Căn Hộ |
| AK Tower |
Chủ đầu tư dự án căn hộ AK Tower là OBC Thuận An. |
P. An Phú, TP. Hồ Chí Minh |
1,3 tỷ/căn hộ |
| Setia Gardens |
Căn hộ Setia Gardens Residence do SP Setia Berhad đầu tư. Quy mô: 3 block 27–28 tầng. |
P. Lái Thiêu, TP. Hồ Chí Minh |
2 tỷ/căn hộ |
| Golden Town |
Thắng Lợi đầu tư khu nhà phố Golden Town . |
P. Dĩ An, TP. Hồ Chí Minh |
5 tỷ/căn nhà phố |
| AT Saigon Riverside |
A&T Việt Năm đầu tư dự án Khu căn hộ AT Saigon Riverside . |
P. Bình Hoà, TP. Hồ Chí Minh |
44 triệu/m² |
| Art Stella |
Chủ đầu tư chính thức của dự án Art Stella là ATT Land. |
P. Đông Hoà, TP. Hồ Chí Minh |
1,8 tỷ/căn hộ |
| Diamond Sky |
Diamond Sky là dự án cao cấp do Vạn Phúc Group đầu tư. |
KĐT Vạn Phúc, P. Hiệp Bình, TP. HCM |
120 triệu/m² |
| The Emerald 68 |
The Emerald 68 là căn hộ cao cấp được đầu tư bởi Lê Phong & Coteccons |
P. Lái Thiêu, TP. Hồ Chí Minh |
2,5 tỷ/căn hộ |
| TT Avio |
Chủ đầu tư dự án căn hộ TT Avio là TTCapital. |
P. Dĩ An, TP. Hồ Chí Minh |
1,6 tỷ/căn hộ |
| Phú Đông Sky One |
Chủ đầu tư dự án Phú Đông SkyOne là Phú Đông Group. |
P. Dĩ An, TP. Hồ Chí Minh |
1,7 tỷ/căn hộ |
| Benhill |
Benhill là dự án căn hộ do Tecco Group đầu tư. |
P. Thuận Giao, TP. Hồ Chí Minh |
27 triệu/m² |
| The Gió |
Tập Đoàn An Gia vừa cho ra mắt căn hộ cao cấp The Gió Riverside . |
P. Đông Hoà, TP. Hồ Chí Minh |
2 tỷ/căn hộ |
| Fresia Riverside |
Fresia Riverside được đầu tư bởi TV Holdings. |
Biên Hoà, Đồng Nai |
1,5 tỷ/căn hộ |
| AT Sky Garden |
A&T Group – Chủ đầu tư dự án căn hộ AT Sky Garden . |
P. Lái Thiêu, TP. Hồ Chí Minh |
33 triệu/m² |
| Symlife |
Nam Hiệp Thành vừa cho ra mắt căn hộ Symlife |
P. Đông Hoà, TP. Hồ Chí Minh |
3,68 triệu/m2 |